Samið um verkfræðihönnun nýs leikskólahúsnæðis Skýjaborgar
Hönnun nýs leikskólahúsnæðis er lokið og komið að næsta verkhluta sem er verkfræðihönnun hússins.
Samið hefur verið við EFLU verkfræðistofu um þann verkþátt en ritað var undir verksamning í morgun, þann 2. desember. Verkið er þegar hafið og áætluð verklok eru í febrúarlok 2026.
Staðsetning nýs leikskólahúsnæðis er norður af nýju leiksvæði, Vinavelli, við Innrimel í Melahverfi og byggir á 1 hektara samfélagsþjónustusvæði nr.13 skv. gildandi aðalskipulagi Hvalfjarðarsveitar 2020-2032. Gert er ráð fyrir að aðkoma að svæðinu verði, a.m.k fyrst um sinn, um götuna Innrimel skv. nýju deiliskipulagi fyrir svæðið.
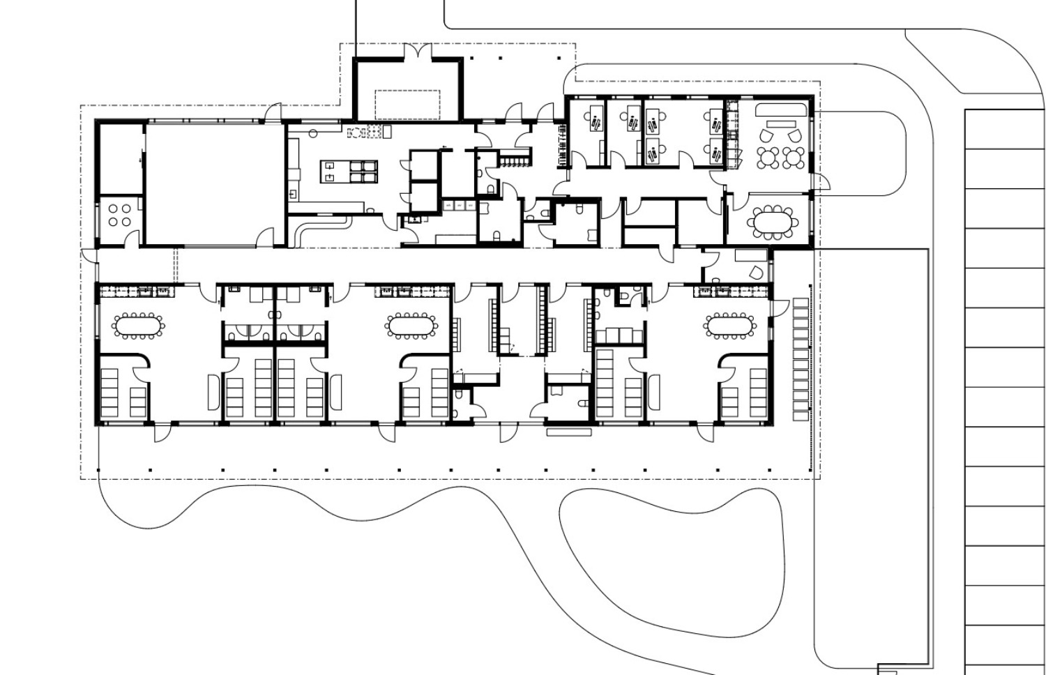
Leikskólinn er hannaður fyrir allt að 68 börn, fjórar deildir en byrjað verður á byggingu þriggja deilda með möguleika á byggingu þeirrar fjórðu þegar fram líða stundir. Stoðrými eru hönnuð til að mæta þörfum allt að 68 barna og starfsfólks. Hönnun húsnæðisins, sem var í höndum Andrúm arkitekta, var unnin í góðu samstarfi við starfsfólk leikskólans.
Áætlað er að verkframkvæmdin verði boðin út fyrri hluta ársins 2026 og að byggingu leikskólans ljúki árið 2028.


